(architect)

victoria shegay —

Здравствуйте! Я — архитектор-проектировщик с опытом работы в России и США, специализирующийся на частной жилой архитектуре.
Разрабатываю архитектурные и конструктивные решения для малоэтажных домов, включая перепланировки и новое строительство. Мой подход основан на технической точности, знании нормативной базы и системной организации проектного процесса.

опыт

2022——2025
В своей профессиональной практике я реализовала ряд проектов в области частной жилой архитектуры - от реконструкций и перепланировок до проектирования новых малоэтажных домов. Моя работа охватывает все этапы проектирования: анализ исходных данных, разработку архитектурных и конструктивных решений, подготовку пакета документации и сопровождение до получения разрешения на строительство.
21
Малоэтажные жилые дома
13
Перепланировки существующих зданий
3
Проекты реконструкций
4
Коммерческие помещения

кейсы

25+
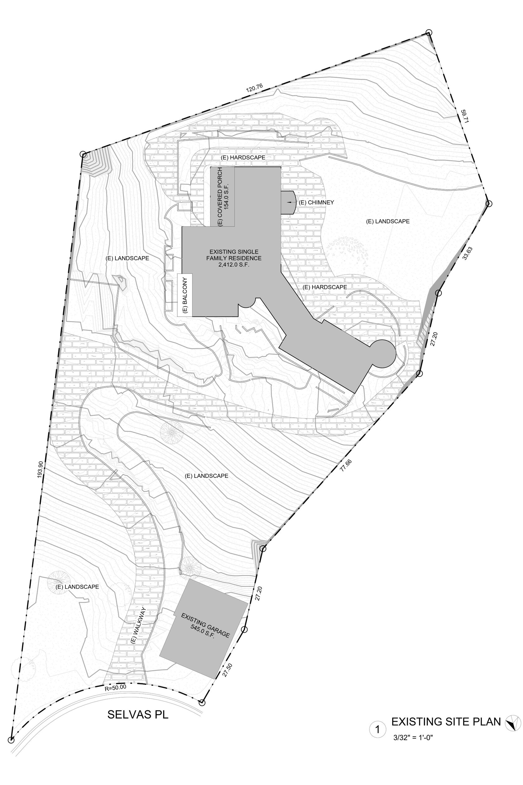
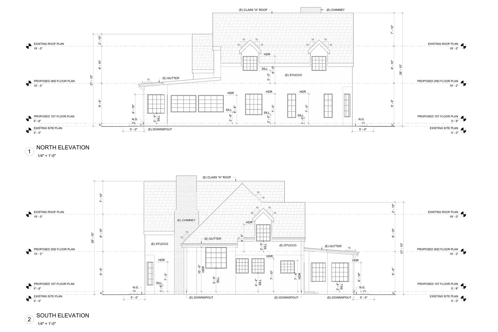
Проект полной реконструкции двухэтажного жилого дома в районе Cherokee, Los Angeles, расположенного в зоне сохранения исторической застройки. Основной задачей стало кардинальное обновление внутренней планировки при сохранении исторического облика здания и его конструктивной основы.

Была выполнена комплексная переработка пространственной структуры дома с учетом существующих несущих элементов и распределения нагрузок. В результате планировка стала более эргономичной и функциональной, сохранив при этом аутентичный внешний вид и характер здания.


2025
↳ открыть
закрыть ↵
клиент
частный заказчик
платформа
autodesk revit
сайт
↳ shegayzarch.ru
Работа велась с учетом несущих элементов и ограничений, связанных со статусом объекта. В результате пространство было реорганизовано в более логичную систему, соответствующую современным стандартам комфорта, без утраты исторической идентичности дома.
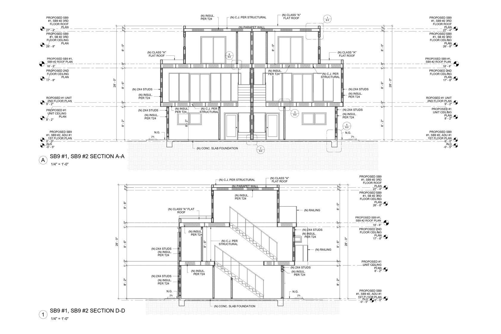
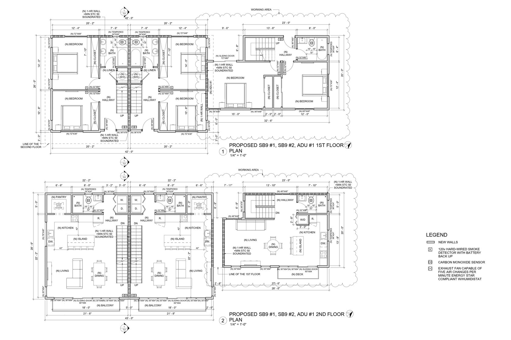
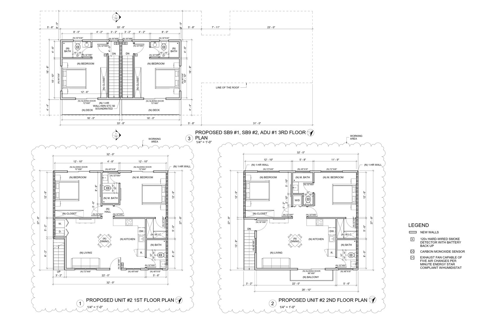
Инвестиционный проект жилой застройки участка в районе Thurman Ave, Los Angeles, расположенного вблизи Голливудских холмов. На месте существующей одноэтажной резиденции была реализована новая концепция плотной малоэтажной застройки.

В результате спроектирован комплекс из трёх объектов: трёхэтажного дюплекса, двухэтажного примыкающего дома и двухэтажного жилого блока на две квартиры. Основной акцент сделан на эффективном использовании узкого участка, вертикальной организации пространства и создании функциональной и экономически целесообразной жилой структуры.
2025
↳ открыть
закрыть ↵
клиент
OJALA LA PROPERTIES LLC
платформа
autodesk revit
сайт
↳ shegayzarch.ru
Данный проект продемонстрировал возможность трансформации резиденции участка в многофункциональную жилую застройку с повышенной эффективностью использования территории. Архитектурная концепция позволила объединить разные типологии жилья в единую композиционную систему, сохранив баланс между плотностью, приватностью и комфортом.
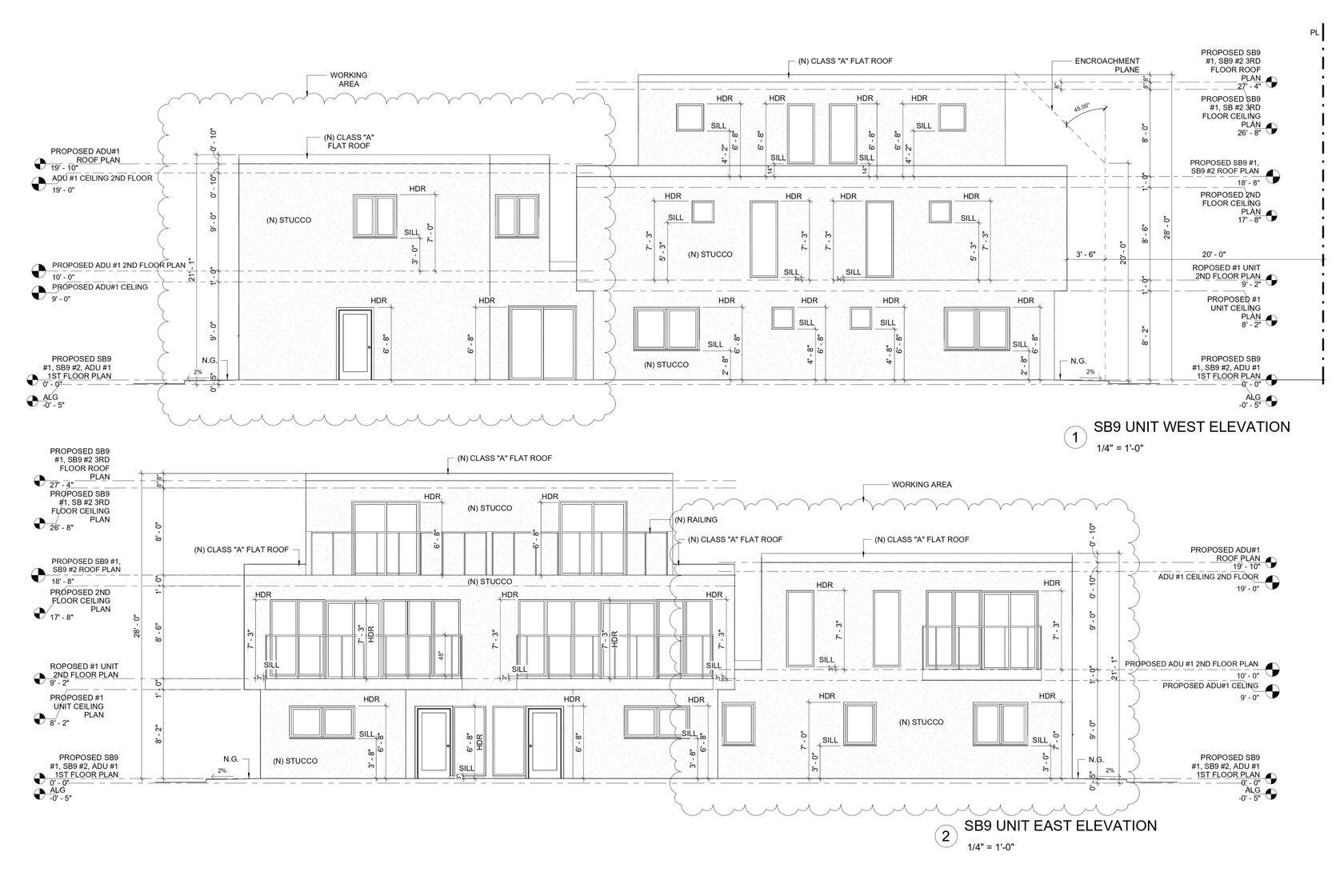
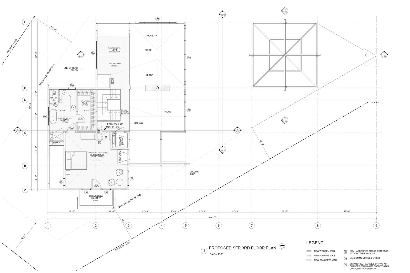
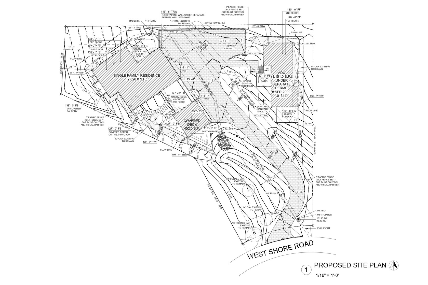
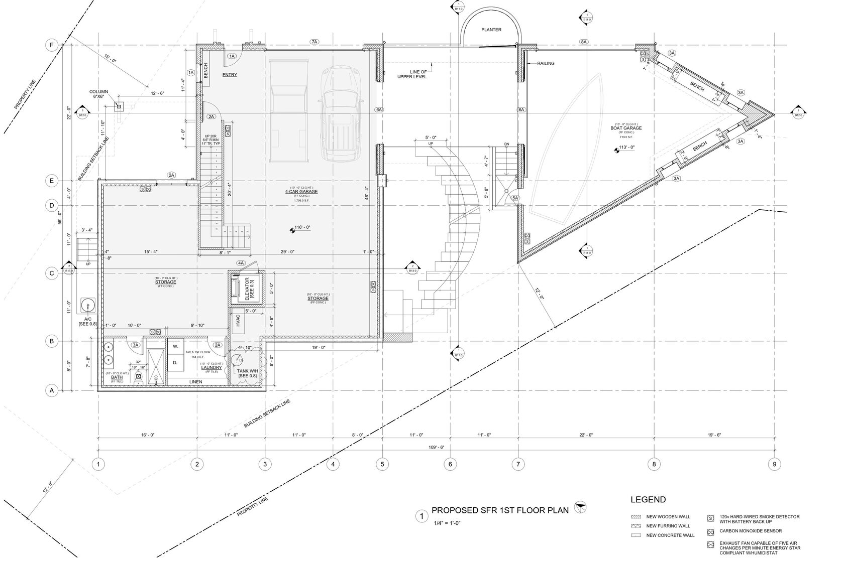
Проект жилого дома на West Shore Road, расположенного на участке со сложным горным рельефом и выраженным уклоном. Основной задачей стало формирование комфортной жилой среды для семьи с организацией подъездных путей, придомовых площадок и устойчивой конструктивной системы на перепадном участке.

Особое внимание было уделено расчету подпорных стен и обеспечению надежности конструкции с учетом рельефа. Проект прошел ряд инженерных и градостроительных согласований.

В результате был спроектирован трёхэтажный индивидуальный жилой дом и отдельный жилой блок с выразительной архитектурой: острыми кровлями, динамичной пластикой фасадов и панорамным остеклением, ориентированным на ландшафт.
2025
↳ открыть
закрыть ↵
клиент
частный заказчик
платформа
autodesk revit
сайт
↳ shegayzarch.ru
Проект демонстрирует работу с участками повышенной сложности, где архитектура формируется в тесной связи с ландшафтом и инженерными ограничениями. Баланс конструктивной надежности и выразительной формы стал ключевым принципом разработки.
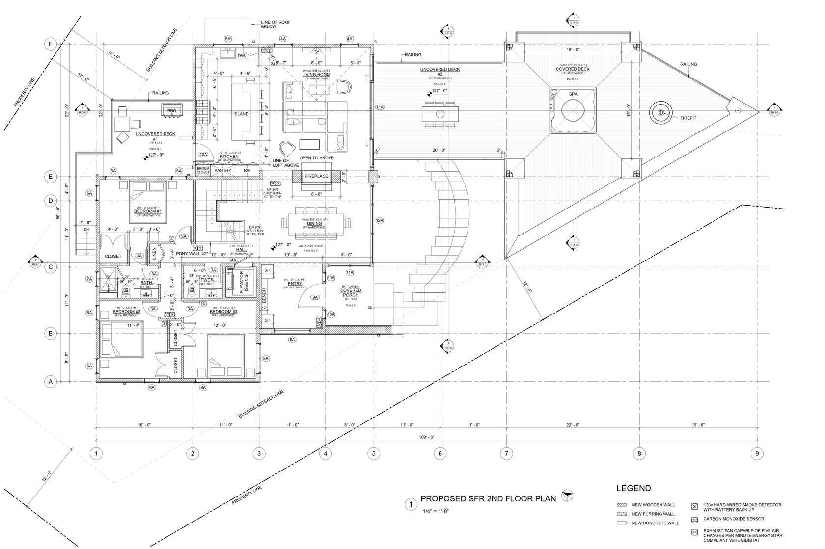
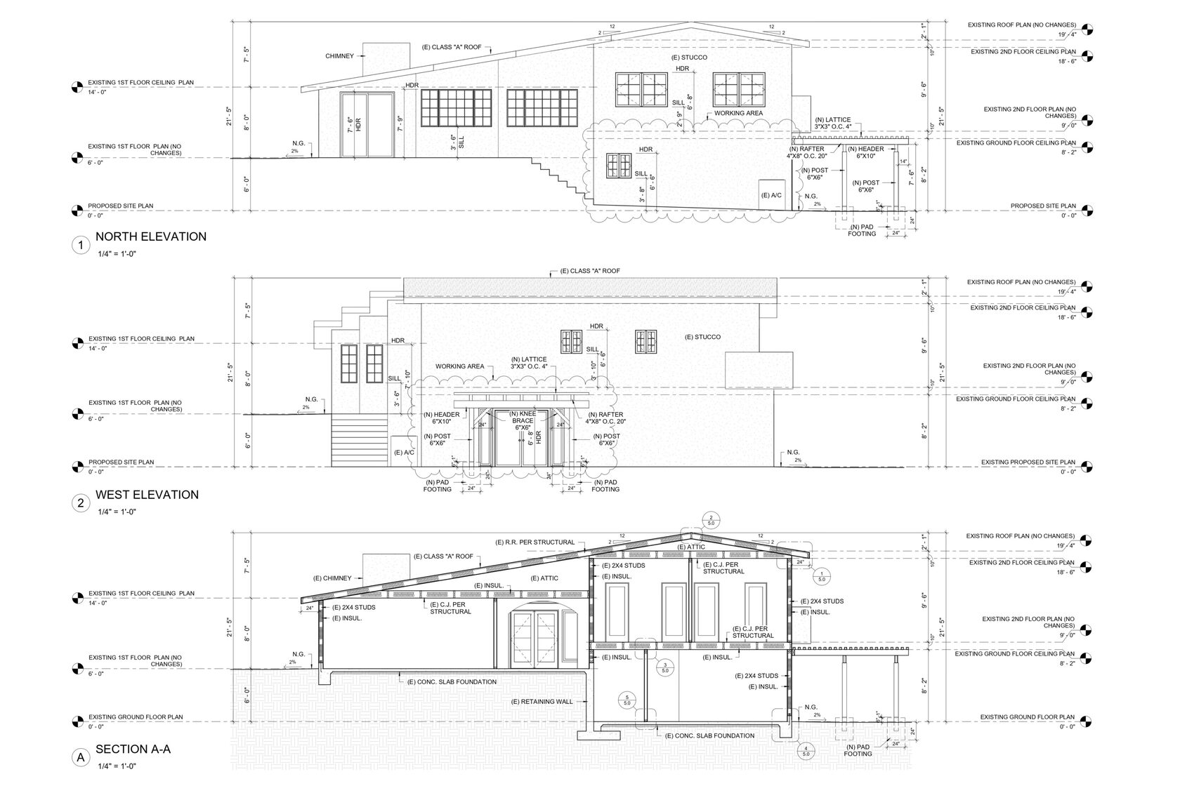
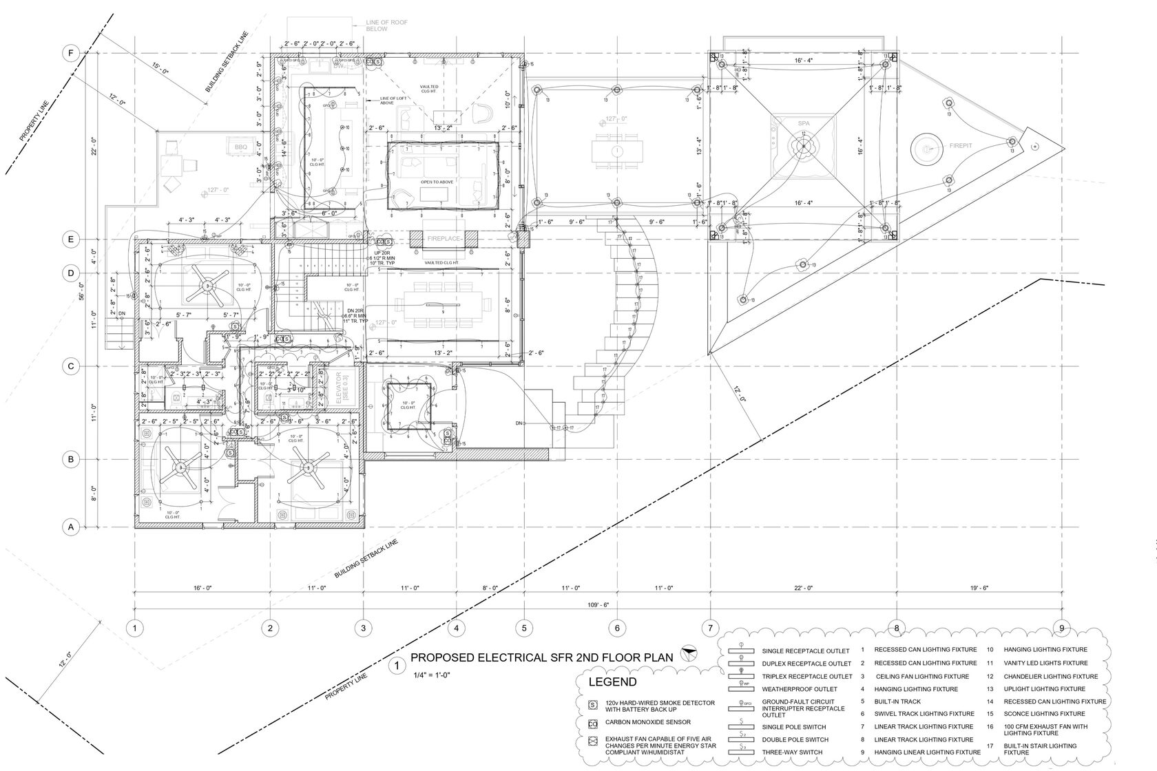
Техническая разработка и проектная документация. В разделе представлены примеры моделирования рельефа, BIM-разработки в Revit, а также рабочие планы и инженерные схемы.
2024
↳ открыть
закрыть ↵
платформа
autodesk revit
сайт
↳ shegayzarch.ru
Чертежи отражают техническую сторону проектирования: работу с рельефом, построение BIM-моделей и разработку рабочей документации, необходимой для реализации проекта.

услуги

shegayzarch.ru
Я разрабатываю продуманные и технически обоснованные решения для частного жилищного строительства. Моя работа сочетает функциональность, конструктивную точность и соответствие нормативным требованиям. Каждый проект начинается с анализа участка, задач заказчика и градостроительных ограничений, чтобы в результате создать архитектуру, которая не только выглядит гармонично, но и полностью готова к реализации.
Жилое проектирование
Проектирование частных домов до 2-3 этажей, включая каркасные и каменные конструкции. Разработка планировочных решений, фасадов и объемно-пространственной структуры с учетом эргономики, нагрузок и строительных норм.
Цель - создать логичную и комфортную жилую среду, адаптированную под реальные потребности семьи.
Реконструкция и перепланировка
Комплексная переработка существующих зданий с учетом несущих элементов и ограничений участка. Работаю с историческими зонами и сложными условиями, сохраняя конструктивную основу и улучшая функциональность пространства.
Проекты включают анализ существующего состояния, разработку новой планировочной структуры и подготовку документации для согласования.
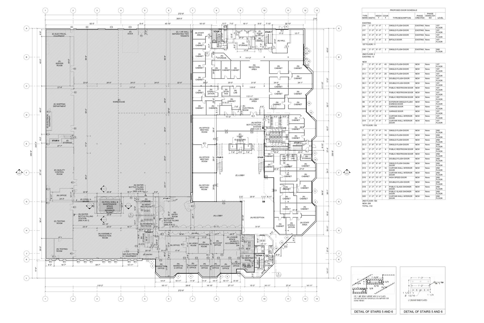
Проектная документация и сопровождение
Подготовка полного пакета чертежей для подачи разрешения на строительство, включая архитектурные, планировочные и инженерные схемы.
Работаю с BIM-моделированием в Revit, обеспечивая точность документации и соответствие нормативной базе. Сопровождаю проект до этапа согласования.

контакты

8:00——19:00
email
atr23@icloud.com

оставьте запрос, и я свяжусь с вами, чтобы обсудить детали и возможные решения

Made on
Tilda